Nos avis clients
Nos avis clients
0

Lattes- Maison T5 de 119m² sur 573m² de terrain

Lattes (34970)
Réf : 1702

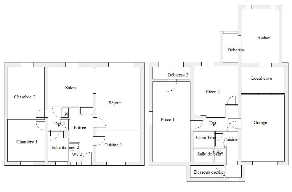
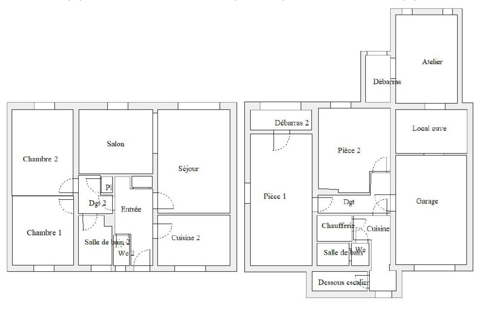
Au calme d'une impasse et idéal pour un projet de rénovation. Cette maison offre un beau volume de 119 m² habitables sur une parcelle de 573 m² (terrain piscinable).

Le bien se compose de :

- Une maison de 119 m² (agencement à redistribuer).

- Un garage de 19 m² et un atelier de 13 m².

- Terrasse à l'étage de 15m²

L'état général vous fera partir d'une page blanche, vous permettra de repenser entièrement l'espace et de choisir vos prestations.

Les points forts :

- Beau potentiel de valorisation après travaux.

- Jardin bien proportionné laissant beaucoup d'espaces.

- double accès sur la parcelle

A proximité de toutes les commodités (écoles, commerces, bus).

Un audit énergétique détaillé est à votre disposition. Il chiffre précisément les optimisations possibles pour gagner en confort et réduire vos factures.


Prix du bien : 430 000 € Honoraires inclus à la charge du vendeur.

Taxe foncière : 2400 euros

Montant estimé des dépenses annuelles d’énergie pour un usage standard : entre 3800€ et 5180€ TTC / an. Date de référence des prix de l’énergie pour établir cette estimation : 12/01/2026.

Les informations sur les risques auxquels ce bien est exposé sont disponibles sur le site Géorisques : www.georisques.gouv.fr

ImmoMAPI

Prix du bien 430 000 €
Pièce(s) 5
Chambre(s) 4

Caractéristiques du bien

Caractéristiques Valeurs
Code postal 34970
Surface habitable (m²) 119 m²
surface terrain 573 m²
Surface loi Carrez (m²) 119 m²
Nombre de chambre(s) 4
Nombre de pièces 5
Nombre de niveaux 2
Nb de salle de bains 1
Nb de salle d'eau 1
Cuisine Séparée
Mode de chauffage Fioul
Type de chauffage TRAD_TYPE_CHAUFF_CHAUDIERE
Format de chauffage Central
Terrasse OUI
Murs mitoyens 1
Nombre de garage 1
Année de construction 1966
Terrain arboré OUI

Infos financières

Caractéristiques Valeurs
Prix de vente 430 000 €
Les honoraires d'agence seront intégralement à la charge du vendeur  
Taxe foncière annuelle 2 400 €

Bilans énergétiques

DPE GES
Ce bien vous intéresse ?
Fieldset par défaut
Fieldset par défaut
Validation

* Champs obligatoires

Contacter l'agence
Validation
Les informations recueillies sur ce formulaire sont enregistrées dans un fichier informatisé par La Boite Immo agissant comme Sous-traitant du traitement pour la gestion de la clientèle/prospects de l'Agence / du Réseau qui reste Responsable du Traitement de vos Données personnelles. La base légale du traitement repose sur l'intérêt légitime de l'Agence / du Réseau. Elles sont conservées jusqu'à demande de suppression et sont destinées à l'Agence / au Réseau. Conformément à la loi « informatique et libertés », vous disposez des droits d’accès, de rectification, d’effacement, d’opposition, de limitation et de portabilité de vos données. Vous pouvez retirer votre consentement à tout moment en contactant directement l’Agence / Le Réseau. Consultez le site https://cnil.fr/fr pour plus d’informations sur vos droits. Si vous estimez, après avoir contacté l'Agence / le Réseau, que vos droits « Informatique et Libertés » ne sont pas respectés, vous pouvez adresser une réclamation à la CNIL. Nous vous informons de l’existence de la liste d'opposition au démarchage téléphonique « Bloctel », sur laquelle vous pouvez vous inscrire ici : https://www.bloctel.gouv.fr Dans le cadre de la protection des Données personnelles, nous vous invitons à ne pas inscrire de Données sensibles dans le champ de saisie libre.
Ce site est protégé par reCAPTCHA, les Politiques de Confidentialité et les Conditions d'Utilisation de Google s'appliquent.